Преобразователь частоты Aqua-2,2 (2.2KW/11.6A) Встроенный датчик давления, водяное охл. Viena

Где купить
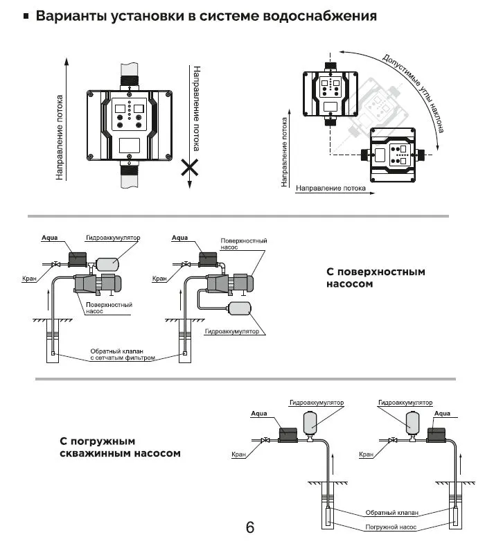
НАЗНАЧЕНИЕ:
Преобразователь частоты Viena Aqua-2,2 предназначены для управления
асинхронными однофазными электродвигателями водяных
насосов, различных типов. Обеспечивают плавный пуск электродвигателя, снижают пусковые токи и снижают нагрузку на питающую электросеть, экономя электроэнергию и продляют срок службы насоса.

ПРИМЕНЕНИЕ:
Частотные преобразователи изменяют скорость вращения ротора
электродвигателя, для обеспечения постоянного давления воды в
водопроводной системе, в зависимости от разбора. При увеличении
разбора воды и падении давления в системе, скорость вращения
электродвигателя плавно увеличивается и наоборот. Для контроля
давления используется встроенный датчик давления.
После подключения и предварительной настройки работают в автоматическом режиме, позволяя достигнуть высокой эффективности
энергосбережения. Подходит для жилых помещений, бассейнов,
парикмахерских, развлекательных заведений и др.

ХАРАКТЕРИСТИКИ:
-Мощность двигателя: 2.2 кВт
-Номинальный ток: 11.6А
-Тип Электропитания: Однофазное
-Напряжение питания источника: 160-260В(230В)/50Гц
-Напряжение на выходе преобразователя: 220В
-Диапазон частот на выходе преобразователя: 20-50Гц
-Характер нагрузки: Насос для воды
-Диаметр резьбы - 5/4"
-Электропитание датчика давления: 24В, 4-20мА
-Диапазон задаваемого давления: 0.5-9 Бар
-Гидроаккумулятор: Ёмкость не менее 2х литров (давление воздуха 60% от заданного)
-Допустимая температура окружающей среды: 0 - +40 градусов цельсия
-Перекачиваемая среда: чистая пресная вода с температурой от 0 до +100 градусов цельсия
-Точность работы по давлению: 0.3 Бара

    Артикул

    - 123915